Bunkhouse Trailers
Customize To Suit Your Needs
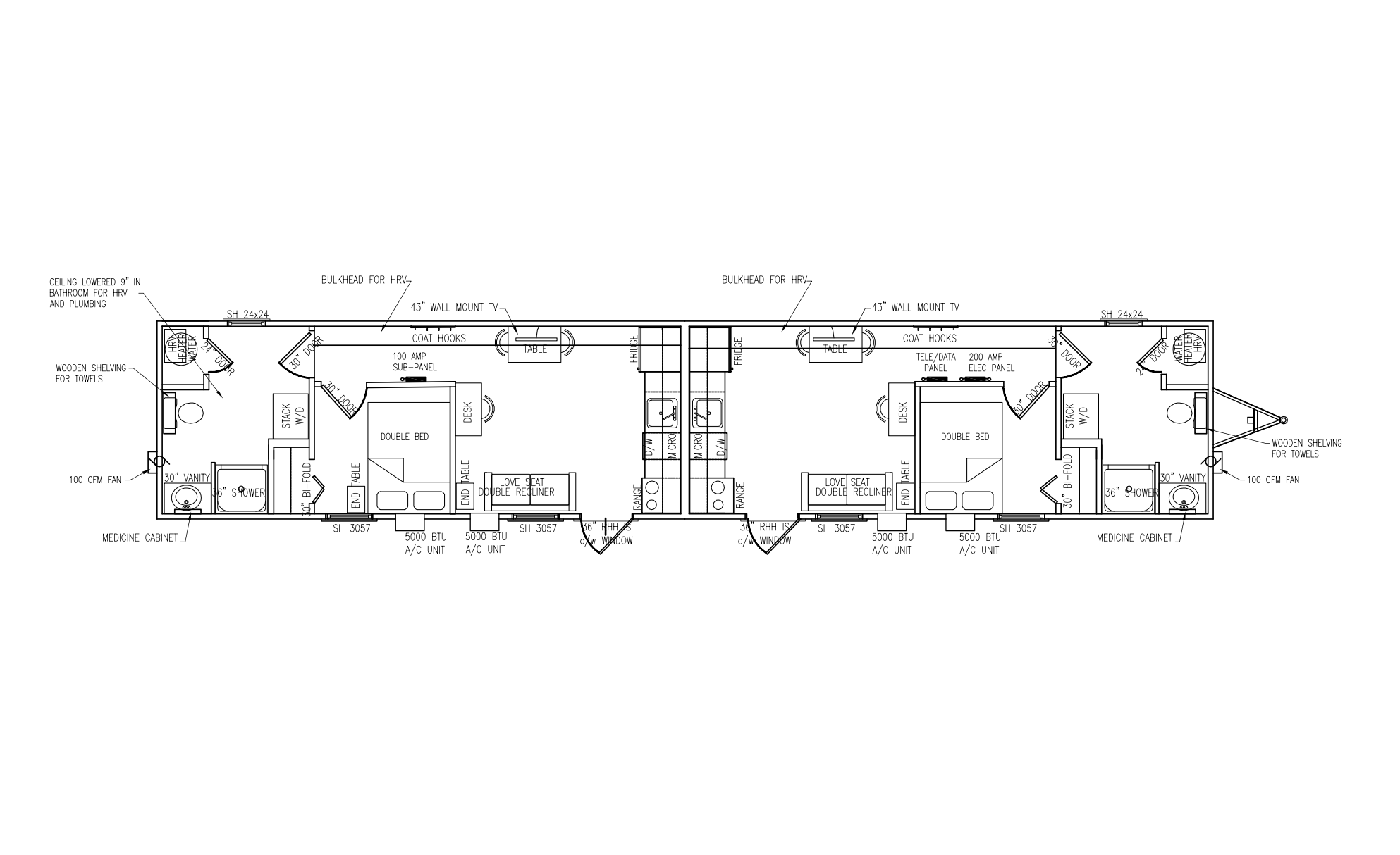
Tailor your bunkhouse trailer to match your specific requirements. Choose from a variety of layouts, features, and finishes to meet your needs.
Tailor your bunkhouse trailer to match your specific requirements. Choose from a variety of layouts, features, and finishes to meet your needs.